°ìÈ̼ÒÃÄË¡¿Í ½»ÂðàìáÓôÊÝÀÕǤÊݸ±¶¨²ñ²ñĹ¾Þ
ÃÛ69ǯ¤ÎÊ¿²°¤ò½»¤ß·Ñ¤°¡¢·Ò¤°¡£¾åÊöÄ®¥Î²È
| À߷ײñ¼Ò | ¡Ê³ô¡Ë¿·À®¹©Ì³Å¹°ìµé·úÃۻλö̳½ê |
|---|---|
| »Ü¹©²ñ¼Ò | ¡Ê³ô¡Ë¿·À®¹©Ì³Å¹ |
| ½êÍ¡¦·úÊý·Á¼° | »ý²È°ì¸Í·ú |
| ¹½Â¤ | ºßÍèÌÚ¤ |
¥ê¥Õ¥©¡¼¥à¤Îưµ¡¡¿À߷ס¦»Ü¹©¤Î¹©É×ÅÀ¤Ê¤É
10ǯ¤Û¤É¶õ¤²È¤Ë¤Ê¤Ã¤Æ¤¤¤¿Êª·ï¤Ç¤¹¡£Ä®Æâ¤Ç¶õ¤²ÈÁêÃ̲ñ¤ò³«ºÅ¤·¤¿ºÝ¤ËÁêÃ̤¬¤¢¤ê¤Þ¤·¤¿¡£»Ò°é¤ÆÀ¤ÂӤؤÎʪ·ïÄ󶡤ò¤ª´ê¤¤¤·¡¢ÊÀ¼Ò¤ÇÇã¼è¤·¤Þ¤·¤¿¡£Åö½é¤ÏºÆÈΤǷײ褷¤Æ¤¤¤Þ¤·¤¿¤¬¡¢Ä®Æâ¤Çʪ·ï¤òõ¤µ¤ì¤Æ¤¢¤Ã¤¿¸½½êͼԤ«¤éÏ¢Íí¤¬¤¢¤ê¡¢¥Õ¥ë¥ê¥Î¥Ù¡¼¥·¥ç¥ó¤Ç¤Î¹©»ö¤ò¹Ô¤¦¤³¤È¤Ë¤Ê¤ê¤Þ¤·¤¿¡£º£²ó¤Îʪ·ï¤ÏĹ´üÍ¥Îɽ»Âð¤ÎǧÄê¤ò¼õ¤±¡¢ÂÑ¿ÌÅùµé3¡¢ÃÇÇ®Åùµé6¤òÌÜɸ¤Ë¤·¤¿Àǽ¸þ¾å¥ê¥Î¥Ù¤ò¹Ô¤¤¤Þ¤·¤¿¡£¾åÉô¹½Â¤É¾ÅÀ¤¬1.52¡¢UAÃͤ¬0.45¤Î¹âÀǽ½»Âð¤ËÀ¸¤Þ¤ìÊѤï¤ê¤Þ¤·¤¿¡£¥ª¡¼¥Ê¡¼¤â¤È¤Æ¤âËþ¤·¤Æ¤¤¤¿¤À¤¡¢¥¹¥È¥Ã¥¯½»Âð¤ò͸ú¤Ë³èÍѤǤ¤Þ¤·¤¿¡£´û¸¤Îϼ¼¤È±ï¦¤Ï»Ä¤·¤ÆLDK¤ËÎÙÀܤµ¤»¤Þ¤·¤¿¡£¸¼´ØÆþ¤Ã¤ÆÀ¾Â¦¤ò¤ß¤ó¤Ê¤Î¾ì½ê¡¢Å즤ò¸Ä¡¹¤Î¾ì½ê¤È¤·¤Æ´Ö¼è¤ê¤ò¹©Éפ·¤Þ¤·¤¿¡£¶õ¤²È¤È¤Ê¤Ã¤ÆÄ¹¤¤·úʪ¤Ç¤â¥ê¥Î¥Ù¡¼¥·¥ç¥ó¤ò¤¹¤ì¤ÐÀ¸¤Þ¤ìÊѤï¤ê¤Þ¤¹¡£Á°½êͼԤÎÊý¤Ë¤´Êó¹ð¤¹¤ë¤Èµã¤¤¤Æ´î¤ó¤Ç¤¤¤¿¤À¤¤Þ¤·¤¿¡£¼è¤ê²õ¤¹¤Î¤Ç¤Ï¤Ê¤¯³èÍѤ¹¤ë¡£½»¤ß·Ñ¤°¡¢·Ò¤°¤ÎÍýǰ¤Ë±è¤Ã¤¿Êª·ï¤Ë¤Ê¤ê¤Þ¤·¤¿¡£
| Àǽ¸þ¾å¤ÎÆÃÀ | ÂÑ¿ÌÀǽ/Âѵ×Àǽ/²¹Ç®Àǽ/¥Ð¥ê¥¢¥Õ¥ê¡¼Àǽ |
|---|---|
| ÆÃ¤ËÇÛθ¤·¤¿»ö¹à | ÂÑ¿ÌÀǽ¤Ï¾åÉô¹½Â¤É¾ÅÀ¤ò0.61¤«¤é1.52¤Ë°ú¤¾å¤²¤Þ¤·¤¿¡£ ºàÎÁ¤Ï¶Ú¸ò¤¤¡¢¹½Â¤ÍѹçÈÄ¡¢·úÃÛ¶âʪ¤ÇÊ䶯¤·¤Þ¤·¤¿¡£ |
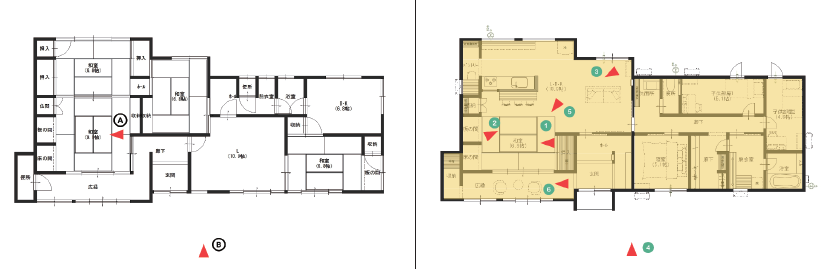
¥ê¥Õ¥©¡¼¥àÁ°
¥ê¥Õ¥©¡¼¥àÁ°¸å¤ÎÊ¿ÌÌ¿Þ

ʪ·ï³µÍ×
| ½êºßÃÏ º´²ì¸©»°ÍÜ´ð·´¾åÊöÄ® | ¿·ÃÛ½×¹©Ç¯ 1955ǯ | ÃÛ¸åǯ¿ô¡¡70ǯ | »Ü¹©´ü´Ö¡¡150Æü´Ö |
| ³ºÅö¹©»ö¾²ÌÌÀÑ 122.16 Ö ¡¿Áí¹©»ö¾²ÌÌÀÑ 122.16 Ö | ³ºÅöÉôʬ¹©»öÈñ 1,000¡Á2,000Ëü±ß̤Ëþ ¡¿Áí¹©»öÈñ 1,000¡Á2,000Ëü±ß̤Ëþ | ||
| ºßÍèÌÚ¤ | |||
| µï½»¼Ô¹½À® 15 ¡Á 39 ºÐ¡§¡¡2¿Í ¡¿ 14 ºÐ°Ê²¼¡§¡¡2¿Í | |||
¹Öɾ
¼ã¤¤»Ò°é¤ÆÀ¤ÂÓ¤¬ºÊ¤Î¼Â²È¤Î¤¢¤ëº´²ì¸©¾åÊöÄ®¤Ç½»¤Þ¤¤Ãµ¤·¤ò¤·¤Æ
¤¤¤¿¤È¤³¤í¡¢¡Ö¥ê¥Õ¥©¡¼¥à¤·¤Þ¤¹¡£¤ª³Ú¤·¤ß¤Ë¡ª¡×¤Î¤Î¤Ü¤ê´ú¤ò¸«¤Ä
¤±¤¿¡£¤½¤ì¤ÏÃϸµ¤Î¹©Ì³Å¹¤¬10ǯÍè¤Î¶õ¤²È¤ò¼èÆÀ¤·¡¢¥ê¥Õ¥©¡¼¥à¤Î
¥â¥Ç¥ë¥ë¡¼¥à¤È¤·¤Æ¤³¤ì¤«¤éÀ°È÷¤·¤è¤¦¤È¤·¤Æ¤¤¤¿¤â¤Î¤À¤Ã¤¿¡£¤³¤¦
¤·¤Æ¡¢»Ü¼ç¤È¹©Ì³Å¹¤Î¥¿¥Ã¥°¤Ë¤è¤ë¶õ¤²È¥ê¥Õ¥©¡¼¥à¤¬¥¹¥¿¡¼¥È¤·¤¿¡£
·úʪ¤Ï¡¢ÃÛ69ǯ¤ÎÌÚ¤ʿ²°·ú¤Æ¡£120Ö¤òͤ¨¤ë¹¤µ¤òÀ¸¤«¤·¤¿
½»¤Þ¤¤¤Å¤¯¤ê¤¬¿Ê¤á¤é¤ì¤¿¡£¥×¥é¥ó¤Ï¡¢À¾Â¦¤Î¶¦ÍѶõ´Ö¤ÈÅ즤θļ¼
¶õ´Ö¤ËÂ礤¯¥¾¡¼¥Ë¥ó¥°¤µ¤ì¤ë¡£À¾Â¦¤Î¶¦ÍѶõ´Ö¤Ï¡¢19Ä¡Âç¤ÎLDK
¤È½ñ±¡¤Î¤¢¤ë6¾ö´Ö¤Îϼ¼¤¬»ÅÀÚ¤ê¤Ê¤·¤Ç¤Ä¤Ê¤¬¤ë¹¡¹¤È¤·¤¿¶õ´Ö¤¬
À¸¤Þ¤ì¤¿¡£¤½¤ÎÅ·°æ¤Ë¤Ï¡¢¸©¤Î½õÀ®¤Ç¹ØÆþ¤·¤¿¸©»º¤Î¿ùÈĤ¬°ìÌÌÄ¥¤é
¤ì¤Æ¤¤¤ë¡£
À߷פϡ¢´û¸Éôʬ¤ò²òÂΤ·¤Ê¤¬¤éÊѹ¹¤ò²Ã¤¨¤Æ¤¤¤Ã¤¿¡£Ï¼¼¤âÅö½é
¤ÏÅ·°æ¤òÄ¥¤êľ¤¹Í½Äê¤À¤Ã¤¿¤¬¡¢´û¸¤ÎÅ·°æÎ¢¤Ë±£¤ì¤Æ¤¤¤¿Î¤ò¸½¤¹
¤³¤È¤Ë¡£¤½¤¦¤·¤¿Êѹ¹¤ÏÂ繩¤¬Æñ¤ò¼¨¤¹¤³¤È¤â¤¢¤Ã¤¿¤¬¡¢º¬µ¤¤è¤¯Àâ
ÆÀ¤·¤Æ¤¤¤Ã¤¿¡£
¤³¤Î¥ê¥Õ¥©¡¼¥à¤Ç¤Ï¡¢Ä¹´üÍ¥Îɽ»Âð¤ÎǧÄê¤â¼õ¤±¤Æ¤¤¤ë¡£ÂÑ¿ÌÀǽ
¤Ï¡¢¶Ú¸ò¡¢¹½Â¤ÍѹçÈÄ¡¢¶âʪ¤ÇÊ䶯¤·¤ÆIwÃͤò0.61¤«¤é1.52¤Þ¤Ç°ú
¤¾å¤²¤¿¡£ÃÇÇ®Àǽ¤Ï¡¢ÊÉ¡¦¾²¡¦Å·°æ¤Ë¥°¥é¥¹¥¦¡¼¥ë¤òÆþ¤ì¤ë¤È¤È¤â
¤Ë¡¢¥Ú¥¢¥¬¥é¥¹¤Î¼ù»é¥µ¥Ã¥·¤Ë¸ò´¹¤·¡¢Åùµé6¤ò³ÎÊݤ·¤Æ¤¤¤ë¡£
»Ü¼ç¤Ï¡¢·úʪ¤Ë¼ê¤ò²Ã¤¨¤Æ¤¤¤¯ÌÌÇò¤µ¤ò°ì½ï¤ËÂθ³¤Ç¤¤¿¤³¤È¤Ç¡¢
½»¤Þ¤¤¤Ø¤Î°¦Ã夬¿¼¤Þ¤Ã¤¿¤È¸ì¤ë¡£¥É¥¢¡¢¾ö¡¢¥¹¥¤¥Ã¥Á¥Ü¥Ã¥¯¥¹¡¢¾È
ÌÀ¤Ê¤É¤Ï¡¢»Ü¼ç¤¬¥¤¥ó¥¿¡¼¥Í¥Ã¥È¤Ê¤É¤«¤éÆþ¼ê¤·¤¿¤â¤Î¤òÁȤ߹þ¤ó¤Ç
¤¤¤ë¡£¤½¤¦¤·¤¿»Ü¼ç»Ùµë¤Ï¡¢¼ê´Ö¤¬¤«¤«¤Ã¤¿¤ê¡¢¥È¥é¥Ö¥ë»þ¤ÎÀÕǤ¤Î
½êºß¤¬¤ï¤«¤ê¤Ë¤¯¤¯¤Ê¤Ã¤¿¤ê¤¹¤ë¤³¤È¤«¤é»ö¶È¼Ô¥µ¥¤¥É¤«¤é¤Ï·ù¤¬¤é
¤ì¤ë¤³¤È¤¬Â¿¤¤¤¬¡¢¤³¤Î¹©Ì³Å¹¤ÏÀѶËŪ¤ËÂбþ¤·¤¿¡£²þ½¤ºÑ¤ßʪ·ï¤Ç
¤ÏÆÀ¤é¤ì¤Ê¤¤½»¤Þ¤¤¤Å¤¯¤ê¤Î³Ú¤·¤µ¤Ç¤¢¤ë¡£
´°À®¸å¡¢Æþµï¤·¤Æ¤«¤éÅß¤â²Æ¤â·Ð¸³¤·¤¿¤¬¡¢°æÁð¤Î¹á¤ê¤ËÊñ¤Þ¤ì¤¿
²÷Ŭ¤Ê¶õ´Ö¤Ë»Ü¼ç¤ÏËþ¤·¤Æ¤¤¤ë¡£¤³¤ì¤«¤é¤Ï¡¢¹¤¤ÉßÃϤòÀ¸¤«¤·¤Æ¡¢
¥¹¥±¡¼¥È¥Ü¡¼¥É¤äBBQ¡¢Èª¤Ê¤É¼ñÌ£¤ä»Ò¤É¤â¤¿¤Á¤È¤ÎÍ·¤Ó¤Î¶õ´Ö¤ò
¤Ä¤¯¤ê¹þ¤ó¤Ç¤¤¤³¤¦¤È¤·¤Æ¤¤¤ë¡£
¤³¤ÎÃϰè¤Ç¤Ï¹âÎ𲽤¬¿Ê¤ß¡¢¶õ¤²È¤¬Áý¤¨¤Æ¤¤¤ë¡£¤½¤ì¤é¤¬¥ê
¥Õ¥©¡¼¥à¤Ç¤É¤³¤Þ¤ÇÀ¸¤Þ¤ìÊѤï¤ë¤«¤Ï¡¢Â䶤·¤Æ¤ß¤Ê¤¤¤È¤ï¤«¤é¤Ê¤¤¡£
¤½¤Î¤¿¤á»ö¶È¼Ô¤Ï¡¢¥â¥Ç¥ë¥ë¡¼¥à¤Ê¤É¾ÃÈñ¼Ô¤È¤ÎÀÜÅÀ¤òÁý¤ä¤·¤Æ¤¤¤
¤¿¤¤¤È¹Í¤¨¤Æ¤¤¤ë¡£
¤³¤Î¤è¤¦¤Ë¡¢¶õ¤²È¤Î¥ê¥Õ¥©¡¼¥à¤Ë¤è¤ê¿·¤·¤¤Êë¤é¤·¤òÃϰè¤ËÀ¸¤ß
½Ð¤·¤¿ËܺîÉʤò¡¢°ìÈ̼ÒÃÄË¡¿Í½»ÂðàìáÓôÊÝÀÕǤÊݸ±¶¨²ñ²ñĹ¾Þ¤Ë
¤Õ¤µ¤ï¤·¤¤¤â¤Î¤Èɾ²Á¤·¤¿¡£














